スマホメニュー

営業時間 9:00〜12:00 / 13:00〜17:30 水曜日定休
047-701-7552
[×] Close

二世帯住宅化リフォーム&アイランドキッチン導入

- リフォームの施工事例 -
所在地:千葉県流山市

今回のリフォームは、戸建て住宅を二世帯住宅化した施工事例です。
家族それぞれの部屋を確保し、2つの世帯が快適に暮らせるような間取りの工夫が詰め込まれています。
他にもアイランドキッチンやタンクレストイレの導入や、浴室リフォームなど大がかりなリフォームを実施させていただきました。

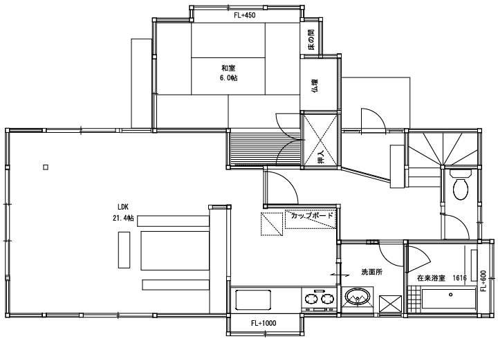
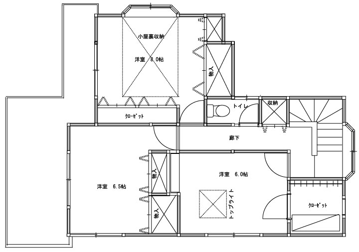
間取り図ビフォーアフター

1階

間取り図・ビフォアー
間取り図・アフター


2階

間取り図・ビフォアー
間取り図・アフター


1Fは両親の住居スペース+家族二世帯で談話出来るリビングスペース
2Fは夫婦+子ども(2人)の住居スペース

既存の間取りから二世帯で住むために十分なスペース確保できるよう 工夫しながら新たな間取りプランを作成しました。


リビング

リビング・ビフォアー
リビング・アフター

リビング・ビフォアー
リビング・アフター

別々だったリビングとキッチンが一緒になりました。
アイランドキッチンを取り入れ、家族とコミュニケーションを取りながら家事が出来るようになりました。


キッチンを洋室へ

キッチン・ビフォアー
キッチン・アフター

キッチン

キッチンはお客様のご要望で、最新設備を取り入れたライトグリーンのキッチンに。
1Fに両親の寝室を作るために、キッチンだったお部屋は4.5畳の洋室にしました。



トイレ

トイレ・ビフォアー
トイレ・アフター

トイレも最新のものと交換しました。 タンクレストイレのため、見た目がスッキリとしてスタイリッシュです。


浴室

浴室・ビフォアー
浴室・アフター

お風呂も最新の設備に変更しました。 白を基調とし、黒の壁を取り入れシックに。


洗面室

洗面室・ビフォアー
洗面室・アフター

洗面化粧台も新しくなり、収納スペースが増えました。


2階リビング

リビング・ビフォアー
リビング・アフター

リビング・ビフォアー
リビング・アフター

クローゼットを無くし、リビングとして一世帯の家族がくつろげる広いスペースを確保しました。


2階洋室

リビング・ビフォアー
リビング・アフター

アクセントクロスを入れておしゃれに


子ども部屋

子ども部屋1

子ども部屋・ビフォアー
子ども部屋・アフター

8畳だった洋室を2部屋の子ども部屋にしました。


子ども部屋2

子ども部屋・ビフォアー
子ども部屋・アフター

こちらもクローゼットを無くし、スペースを作りました。 3.5畳のスペースでも広く感じるように、2段ベッドを造作でつくりました。

キッチン

屋根裏部屋も2つに分け、ロフトに変更しました。 ロフトはベッドから上に登れるようなつくりにし、アスレチック感覚で楽しく遊べる部屋に変わりました。



今回の施工事例に関連するリフォーム項目





他の施工事例を見る